Zurück zur Ergebnisliste Biete Praxisimmobilie ID 23471

Arztpraxis zentral in Lippstadt zu vermieten oder zum Kauf von privat. 220qm

Beschreibung

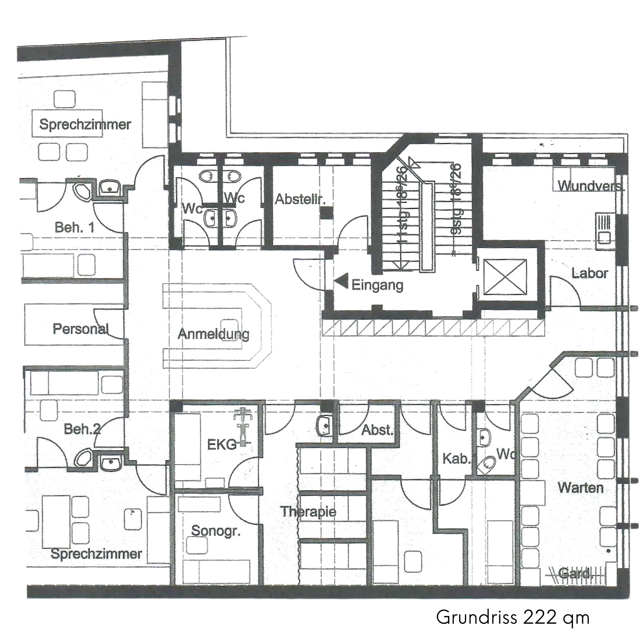
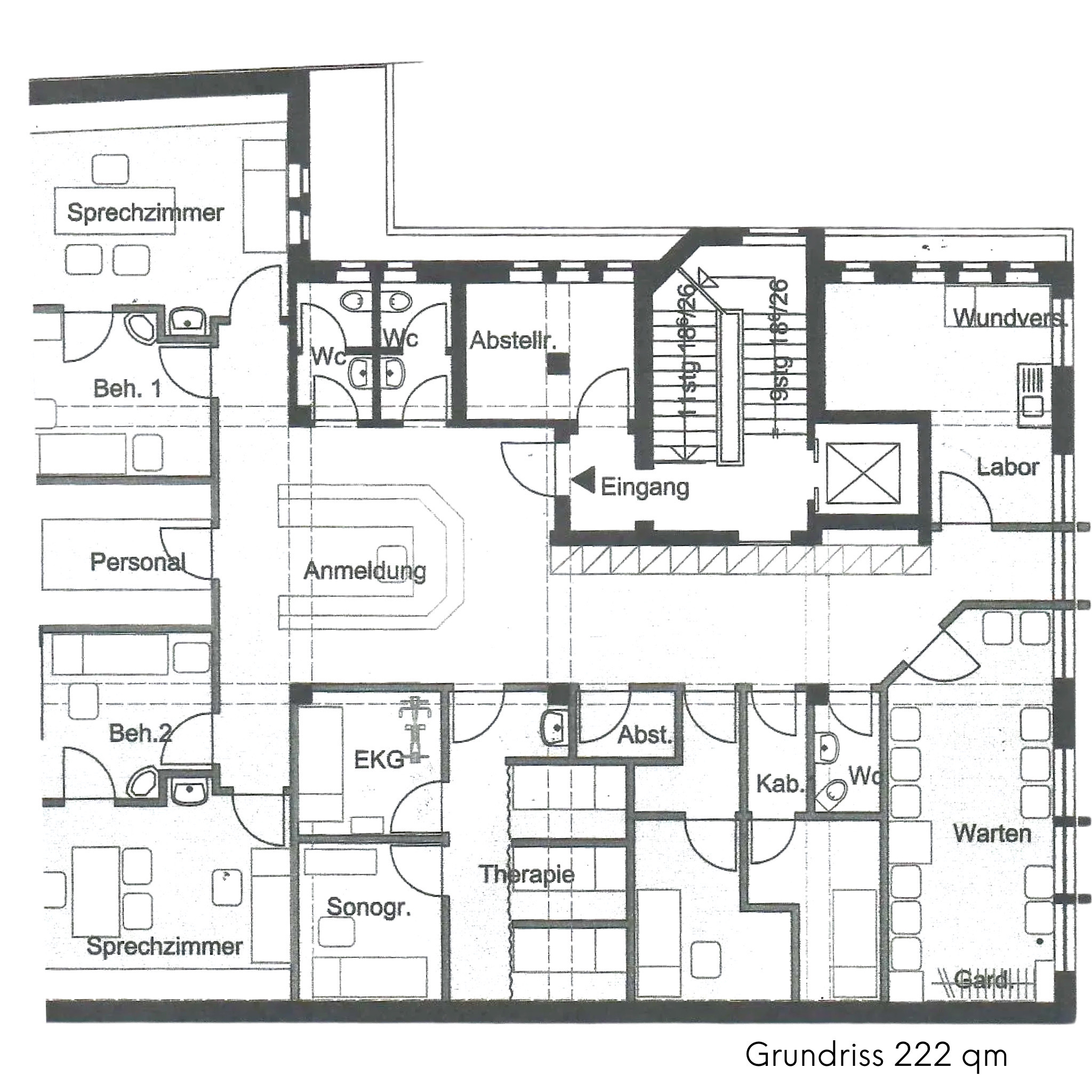
Wir vermieten von privat eine Praxisimmobilie im schönen Lippstadt. Eine Gewerbeimmobilie für Ärzte. Auf Anfrage auch zum Kauf. Die Praxisimmobilie zeichnet sich durch folgende Highlights aus: - Öffentliche Parkplätze stehen direkt am Haus zur Verfügung. - Die Immobilie bietet eine großzügige Fläche von 222 Quadratmetern. - Es gibt die Möglichkeit, 2-3 private Parkplätze direkt am Haus anzumieten. - Die nächste Bushaltestelle ist nur 2 Gehminuten entfernt. - Die Praxis befindet sich in der 1. Etage und ist barrierefrei zugänglich dank des vorhandenen Fahrstuhls. - Im selben Haus befinden sich eine weitere Arztpraxis, ein Geschäft und Wohnungen. - Eine Apotheke befindet sich direkt nebenan.

Adresse

Straße

XXX

Hausnummer

XXX

PLZ

XXX

Praxisort

XXX

Land

XXX

Praxisdetails

Bezugsfertig ab

Sofort

Neubezug

Ja

Bisheriger Praxistyp

MVZ

Gründungsjahr der vorherigen Praxis

2021

Geeignet als Praxistyp

MVZ, Praxisgemeinschaft

Geeignet für folgende Fachgebiete

Hausarzt, Allgemeinmedizin, Endokrinologie, Gynäkologie, HNO, Innere Medizin, Onkologie, Augenheilkunde, Radiologie, Rheumatologie, Unfallchirurgie und Orthopädie, Urologie, Zahnarzt

Weitere Fachgebiete im Haus

Gastroenterologie, Innere Medizin

Kaufpreis/Mietzins

XXX
Kein Makler
Angabe zum Kaufpreis nur im persönlichen Gespräch
Sofort

Immobilie

Gebäudetyp
Praxisräume, Praxisetage, Wohn-Praxisgebäude , Ärztezentrum, Gesundheitszentrum
Gebäudeart
Sonstiges
Baujahr
1980
Letzte Sanierung der Praxis
Neubezug
Lage der Praxisräume (Etage)
1 OG
Barrierrefreie Praxis
Ja
Fahrstuhl vorhanden
Ja
Größe der Arztpraxis in qm
220
Lage und Infrastruktur
Anzahl Dienstparkplätze
2-3
Entfernung Kita zur Praxis
1 km
Entfernung Grundschule zur Praxis
500
Entfernung Oberschule zur Praxis
500
Entfernung nächste Bushaltestelle zur Praxis
3 Minuten Fußweg
Entfernung nächste U-Bahn Haltestelle zur Praxis
3 Minuten Fußweg
Einwohnerzahl des Praxisortes
75.000

Inventar

Anzahl der Praxisräume
11
Beschreibung und Ausstattung der Praxisräume
Praxisräume, maßgeschneidert auf Ihre Bedürfnisse. Die Praxis wird renoviert. Wir berücksichtigen dabei Ihre Wünsche, um Räumlichkeiten zu schaffen, die perfekt auf Ihre Bedürfnisse zugeschnitten sind. Individuelle Raumgestaltung. Sollten Sie eine flexible Raumgestaltung benötigen, ist das kein Problem. Einige Innenwände sind Leichtbauwände und können bei Bedarf umgestellt oder entfernt werden.
Bodenbelag
Bisher Laminat, der neue Bodenbelag kann mit ausgewählt werden.
Nein
Nein

Medizinische Infrastruktur

Filter

Filter Ärzte
    Filter Klinik
      Filter Heilberater

        Ansprechpartner

        Herr Dr. med.
        XXX
        XXX
        XXX
        XXX
        XXX
        030/111 xxx 222
        030/111 xxx 222

        Expose

        Bitte registrieren oder einloggen, um alle Details zu sehen.

        Zur Registrierung / Login

        Arztbörsen Ratgeber & Broschüren

        Standortanalyse & Geomarketing

        Arztbörsen Services

        Inserieren