Zurück zur Ergebnisliste Biete Praxisimmobilie ID 24788

Attraktive ebenerdige Praxisfläche in Duisburg-Walsum zu vermieten

Beschreibung

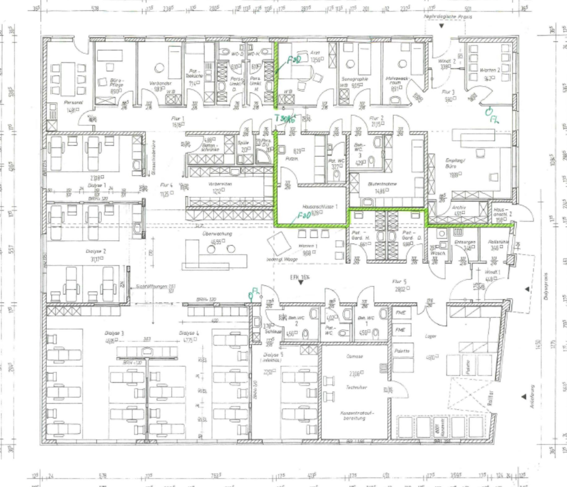
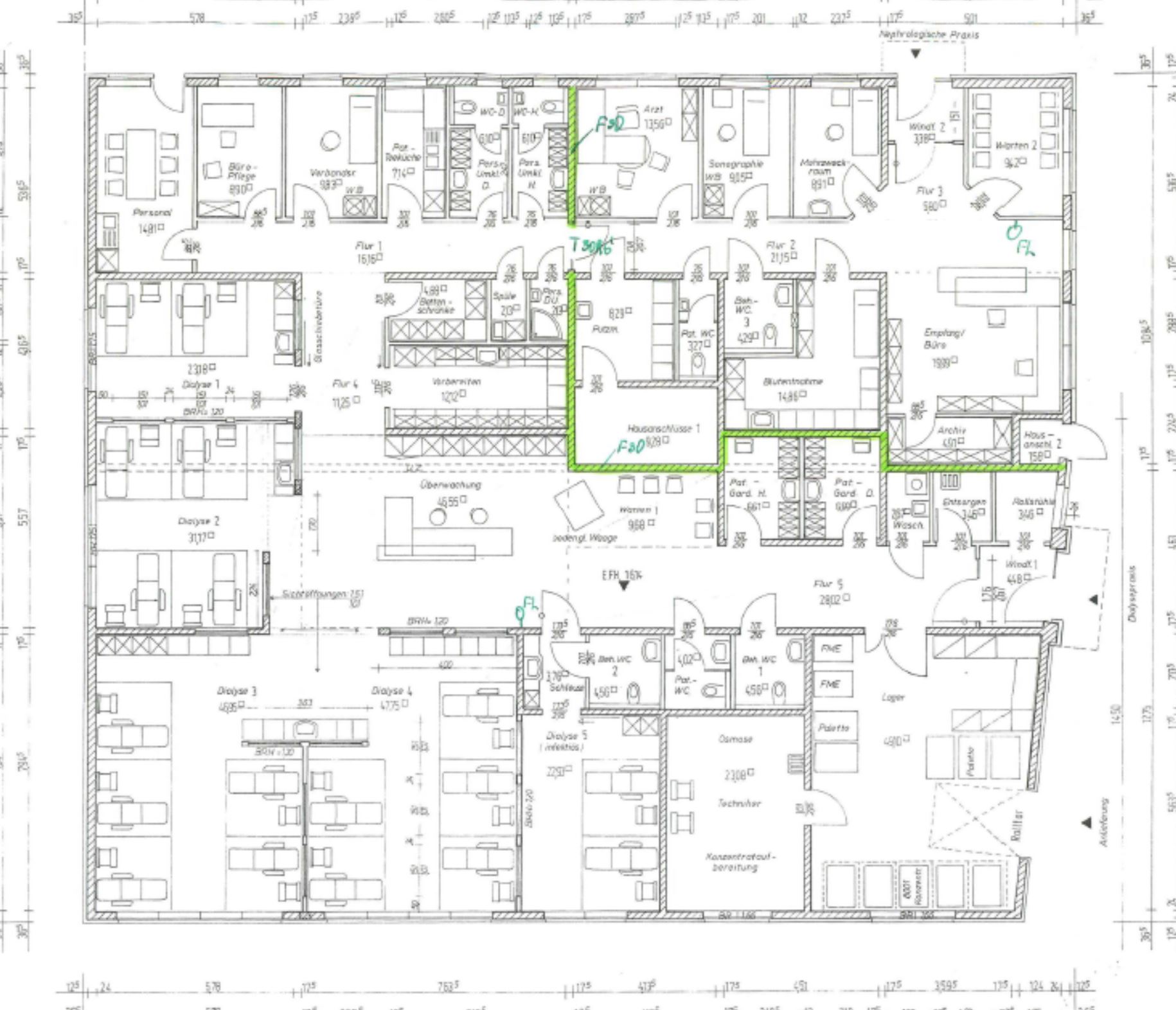
Diese moderne, lichtdurchflutete Immobilie aus dem Jahr 2008 bietet auf ca. 612 m² großzügige und flexibel nutzbare Räume. Die Aufteilung in mehrere unterschiedlich große Behandlungsräume schafft vielseitige Möglichkeiten für Ihre Praxisgestaltung. Das ebenerdige Gebäude verfügt über zwei separate Eingänge, was den Zugang für Patienten und Personal besonders komfortabel gestaltet. Zehn direkt angrenzende Stellplätze runden das Angebot ab und bieten ausreichend Parkmöglichkeiten. Die Immobilie befindet sich in einem ruhigen Wohngebiet in Duisburg-Walsum und ist sowohl mit dem Auto als auch mit öffentlichen Verkehrsmitteln sehr gut erreichbar.

Adresse

Straße

XXX

Hausnummer

XXX

PLZ

XXX

Praxisort

XXX

Land

XXX

Praxisdetails

Bezugsfertig ab

Sofort

Neubezug

Ja

Bisheriger Praxistyp

Ohne

Geeignet für folgende Fachgebiete

Alle

Weitere Fachgebiete im Haus

Keine

Kaufpreis/Mietzins

XXX
Kein Makler
Angabe zum Kaufpreis nur im persönlichen Gespräch
Sofort
6510
970

Immobilie

Gebäudetyp
Einzelgebäude
Gebäudeart
Neubau
Baujahr
2008
Letzte Sanierung der Praxis
Neubezug
Lage der Praxisräume (Etage)
Alle Räume liegen im Erdgeschoss.
Barrierrefreie Praxis
Ja
Fahrstuhl vorhanden
Erdgeschoss
Größe der Arztpraxis in qm
612
Lage und Infrastruktur
Lage der Praxis im Ort
Die Immobilie liegt in Duisburg-Walsum nahe B8 in ruhiger Lage in einem Wohngebiet.
Anzahl Patientenparkplätze
10
Entfernung nächste Straßenbahnhaltestelle zur Praxis
400m
Infrastruktur Verkehr
Die Praxis ist sowohl mit dem ÖPNV als auch dem Auto gut erreichbar. 10 Parkplätze befinden sich direkt an der Praxis.

Inventar

Beschreibung und Ausstattung der Praxisräume
Die Praxis wird ohne medizinisches Inventar vermietet.
Nein
Ja

Medizinische Infrastruktur

Filter

Filter Ärzte
    Filter Klinik
      Filter Heilberater

        Ansprechpartner

        Herr Dr. med.
        XXX
        XXX
        XXX
        030/111 xxx 222

        Expose

        Bitte registrieren oder einloggen, um alle Details zu sehen.

        Zur Registrierung / Login

        Arztbörsen Ratgeber & Broschüren

        Standortanalyse & Geomarketing

        Arztbörsen Services

        Inserieren