Zurück zur Ergebnisliste Biete Praxisimmobilie ID 24968

Attraktive Gewerbefläche im Herzen von Rellingen – Voll ausgestattet und bezugsfertig

Beschreibung

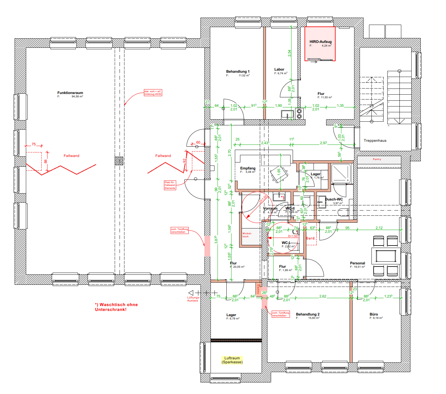
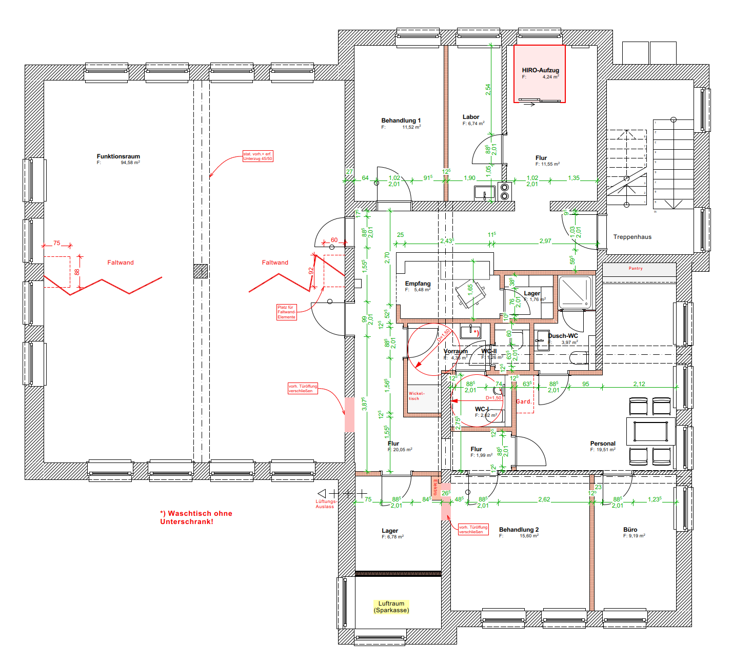
In zentraler Lage von Rellingen bieten wir eine hervorragend ausgestattete Praxisffläche mit einer Gesamtfläche von ca. 230 qm an. Diese moderne Praxisimmobilie erstreckt sich über eine komplette Etage in einem Wohn- und Geschäftshaus und ist ideal für Ärzte, die eine repräsentative und funktionale Arbeitsumgebung suchen.

Die durchdachte Grundrissgestaltung ermöglicht eine flexible Nutzung der Praxisräume, die bei Bedarf an individuelle Anforderungen angepasst werden kann. Alle Praxisräumlichkeiten sind lichtdurchflutet und bieten ein angenehmes Arbeitsklima. Die Ausstattung umfasst eine moderne Vollklimatisierung für optimales Raumklima sowie eine komplette EDV-Verkabelung, wodurch die Fläche sofort bezugsfertig ist.

Die Gewerbefläche eignet sich hervorragend für Praxisbetriebe: Sie vereint einen professionellen Eindruck mit einer angenehmen Atmosphäre für Patienten. Der einladende Empfangsbereich rundet das attraktive Gesamtbild perfekt ab.

Adresse

Straße

XXX

Hausnummer

XXX

PLZ

XXX

Praxisort

XXX

Land

XXX

Praxisdetails

Bezugsfertig ab

Sofort

Neubezug

Nein

Bisheriger Praxistyp

Ohne

Geeignet als Praxistyp

Einzelpraxis, Privatpraxis

Geeignet für folgende Fachgebiete

Alle

Weitere Fachgebiete im Haus

Keine

Kaufpreis/Mietzins

XXX
Beide Parteien
Angabe zum Kaufpreis nur im persönlichen Gespräch
3830.73
825

Immobilie

Gebäudetyp
Praxisetage, Wohnhaus, Bürogebäude, Wohn-Geschäftsgebäude
Gebäudeart
Altbau - Saniert
Baujahr
1984
Letzte Sanierung der Praxis
2022
Lage der Praxisräume (Etage)
1. OG - komplette Etage
Barrierrefreie Praxis
Nein
Fahrstuhl vorhanden
Nein
Größe der Arztpraxis in qm
230
Weitere Mieter im Haus
Sparkasse, Wohnungsmieter
Lage und Infrastruktur
Lage der Praxis im Ort
Direkte Ortskernlage, gegenüber vom Rathaus.
Anzahl Dienstparkplätze
3
Anzahl Patientenparkplätze
5 (im Pool)

Inventar

Beschreibung und Ausstattung der Praxisräume
Voll ausgebaut mit Empfangstresen.
Bodenbelag
PVC / Vinyl-Holzoptik
Ja
Ja

Medizinische Infrastruktur

Filter

Filter Ärzte
    Filter Klinik
      Filter Heilberater

        Ansprechpartner

        XXX
        XXX
        XXX

        Expose

        Bitte registrieren oder einloggen, um alle Details zu sehen.

        Zur Registrierung / Login

        Arztbörsen Ratgeber & Broschüren

        Standortanalyse & Geomarketing

        Arztbörsen Services

        Inserieren