Zurück zur Ergebnisliste Biete Praxisimmobilie ID 14246

Erstbezug! Mietfläche verfügbar - Neubau Gesundheitszentrum am Bahnhof Besigheim

Verkauft

Beschreibung

in idealer Lage gegenüber dem Bahnhof von Besigheim erstellen wir das neue Gesundheitszentrum. Die Eröffnung ist im November 2020 geplant.

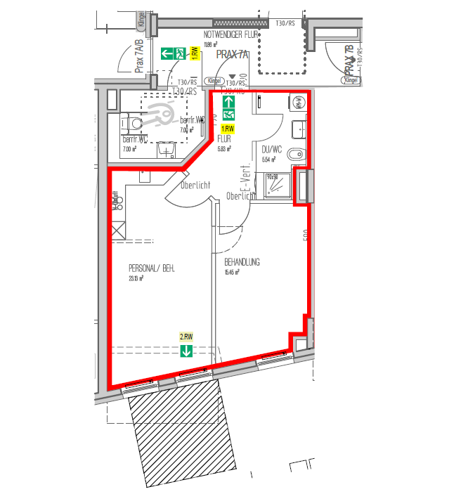
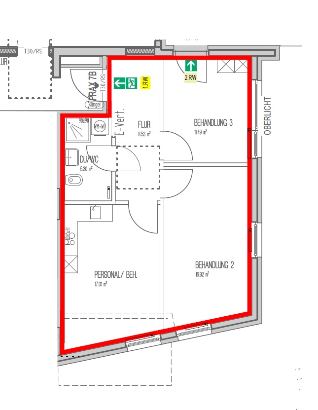
Eine moderne Eckpraxis ist noch verfügbar. Sie haben jetzt noch die Chance bei der Raumaufteilung, Innenausstattung, den Oberflächenmaterialien und den Farben mitzuentscheiden. Ein Beispielgrundriss sehen Sie unter Fotos.

Die freie Mietfläche betragen 50m² und 60m².

Alle anderen Praxen sind bereits vermietet. Ein großer Allgemeinarzt (Bubeck Praxen - Dr. Wald), die Bahnhofs Apotheke, die AOK, eine Ergo- und Physiotherapie, eine große Kieferorthopädie sowie eine Logopädin und eine Kinder-/Jugendlichen-psychotherapeutin sind bereits im Objekt. 

 Das neue Ärztehaus ist barrierefrei, modern und sehr repräsentativ. Sie profitieren zudem von der zentralen Lage, einem großen Einzugsgebiet und einer sehr guten ÖPNV Anbindung mit idealen Parkmöglichkeiten.

Das Familienunternehmen Layher ist seit Jahrzehnten einer der führenden Immobilienentwickler und Bestandshalter in der Region. Wir erstellen das Gebäude und halten es langfristig in unserem eigenen Bestand. Wir bieten eine langfristige und vertrauensvolle Zusammenarbeit.

Wir freuen uns auf Ihre Anfrage!

Adresse

Die Adressedasten werden aus Diskretionsgründen nicht mehr angezeigt

Praxisdetails

Bezugsfertig ab

Nov. 2020

Neubezug

Ja

Freie Grundrißplanung

Ja

Bisheriger Praxistyp

Ohne

Geeignet als Praxistyp

Einzelpraxis, Berufsausübungsgemeinschaft (BAG), MVZ, Praxisgemeinschaft, KV-Sitz, Privatpraxis

Geeignet für folgende Fachgebiete

Alle

Weitere Fachgebiete im Haus

Allgemeinmedizin, Kieferorthopädie

Kaufpreis/Mietzins

XXX
Kein Makler

Immobilie

Gebäudetyp
Praxisräume, Ärztehaus, Wohn-Praxisgebäude , Ärztezentrum, Gesundheitszentrum, Facharztzentrum
Gebäudeart
Neubau
Baujahr
2020
Lage der Praxisräume (Etage)
Das EG und das 1. OG sind für Artpraxen und medizinnahe Dienstleister sowie eine Apotheke vorgesehen.
Barrierrefreie Praxis
Ja
Fahrstuhl vorhanden
Ja
Größe der Arztpraxis in qm
50-60m²
Weitere Mieter im Haus
Apotheke
Lage und Infrastruktur
Lage der Praxis im Ort
  • Zentral am Bahnhof mit Zug-Anbindungen nach Stuttgart und Heilbronn
  • Zentraler Busbahnhof mit Linien in alle wesentlichen Nachbargemeinden und innerhalb Besigheim.
  • Stadtmobil-Auto (Car Sharing) ebenfalls direkt vor dem Gebäude.
  • Tiefgaragenstellplätze im Objekt sowie weitere ca. 150 Parkplätze im direkten Umfeld. -Kurzparkmöglichkeiten am Eingang für Notärzte und Zulieferer.
  • Der neue Enzpark erreicht man fußläufig in 2 min, die historische Altstadt mit zahlreichen Restaurants in 6 min.
  • Die Dt. Post, Apotheke, AOK, Banken, Edeka, Rossmann und ein Fitnesscenter in weniger als 5 min.
Entfernung Kita zur Praxis
5 min zu Fuß
Entfernung Grundschule zur Praxis
15 min zu Fuß
Entfernung Oberschule zur Praxis
15 min zu Fuß
Entfernung nächste Bushaltestelle zur Praxis
<1 min zu Fuß
Entfernung nächste Straßenbahnhaltestelle zur Praxis
<1 min zu Fuß (Regionalbahn)
Infrastruktur Verkehr
DB Bahn Fahrzeiten:
-Bietigheim-Bi. 5 min
-Ludwigsburg 12 min
-Stuttgart 23 min
-Heilbronn 18 min

Fußweg:
-Altstadt 6 min
-Enztal Center 4 min
-Rossmann 3 min
-Post & AOK 2 min

 
Infrastruktur Bildung und Freizeit
Die Stadt Besigheim (rd. 12.000 Einwohner) bildet zusammen mit der Nachbarstadt Bietigheim-Bissingen ein Mittelzentrum innerhalb der Region Stuttgart.
Mit einer Bevölkerungswachstumsprognose von 8% bis 2030 gehört Besigheim zu den Spitzenreitern in der Region und in Deutschland. (Quelle Bertelsmann Stiftung)
Seit 2005 ist die Stadt staatlich anerkannter Erholungsort und verfügt über mehrere Auszeichnungen wie z.B. schönste Weinsicht 2016, schönster Weinort 2010 und beliebtestes Weinfest 2013.
Einwohnerzahl des Praxisortes
12.000

Inventar

Beschreibung und Ausstattung der Praxisräume
Der Innenausbau hat bereits begonnen. Die Fertigstellung ist für November 2020 vorgesehen. Aktuell können Ihr Wünsche und Bedürfnisse noch sehr gut berücksichtigt werden.
Ja
Name/Anschrift/Link zur Hausverwaltung
https://www.layher-wohnbau.de/vermietung/gewerbe/

Medizinische Infrastruktur

Filter

Filter Ärzte
    Filter Klinik
      Filter Heilberater
        Die Kontaktdaten werden aus Diskretionsgründen nach einem Praxisverkauf nicht mehr angezeigt.

        Ansprechpartner

        Herr Dr. med.
        XXX
        XXX
        XXX
        XXX
        030/111 xxx 222

        Expose

        Bitte registrieren oder einloggen, um alle Details zu sehen.

        Zur Registrierung / Login

        Arztbörsen Ratgeber & Broschüren

        Standortanalyse & Geomarketing

        Arztbörsen Services

        Inserieren