Zurück zur Ergebnisliste Biete Praxisimmobilie ID 19245

Neue Praxisräumlichkeiten im Herzen von Wandlitz

Beschreibung

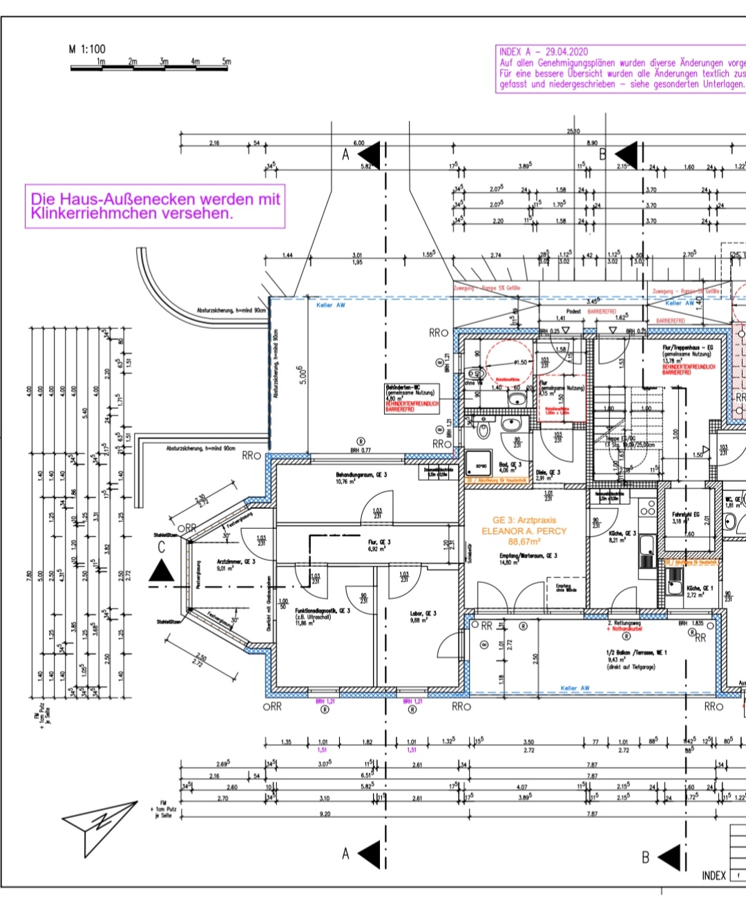
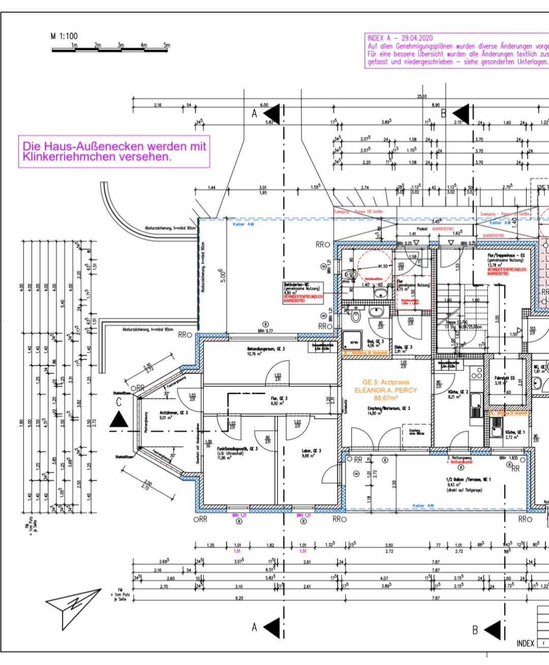
Wunderschöne 110 qm Gesamt-Praxisfläche in optimaler Lage in Wandlitz (Details siehe Grundriss und Fotos). Im Louisenhain gibt es bereits eine Zahnarztpraxis und eine Praxis für Allgemeinmedizin. Gegenüber befindet sind ein Kinderarzt, eine Apotheke und Physiotherapie. Die Praxisräume eignen sich ebenfalls als Büros/Gewerbefläche. Die Fertigstellung ist in den nächsten Wochen terminiert, Sanitäranlagen fehlen noch. Ein barrierefreies Bad steht im Hauseingang zu Verfügung. Die Kaltmiete beträgt 2100,- (3 Parkplätze inklusive). Die Nebenkosten sind zusätzlich und mit 300,- kalkuliert. Besichtigung wäre bereits möglich.

Adresse

Straße

XXX

Hausnummer

XXX

PLZ

XXX

Praxisort

XXX

Land

XXX

Praxisdetails

Bezugsfertig ab

15.03.2022

Neubezug

Ja

Bisheriger Praxistyp

Ohne

Geeignet als Praxistyp

Einzelpraxis, Berufsausübungsgemeinschaft (BAG), Praxisgemeinschaft, KV-Sitz, Privatpraxis

Geeignet für folgende Fachgebiete

Alle

Weitere Fachgebiete im Haus

Keine

Kaufpreis/Mietzins

XXX
Kein Makler

Immobilie

Gebäudetyp
Wohn-Geschäftsgebäude
Gebäudeart
Neubau
Baujahr
2022
Lage der Praxisräume (Etage)
EG, separater Eingang
Barrierrefreie Praxis
Ja
Fahrstuhl vorhanden
Erdgeschoss
Größe der Arztpraxis in qm
110qm Gesamtfläche (inkl. Terrasse)
Weitere Mieter im Haus
Steuerbüro, Kosmetik, Wohnungen
Lage und Infrastruktur
Lage der Praxis im Ort
Das neugebaute Haus im Ensemble Louisenhain liegt zentral und an der Wandlitzer Hauptstraße mit unmittelbarer Anbindung auch zu den öffentlichen Verkehrsmitteln (Bus und Bahn).
Anzahl Dienstparkplätze
1
Anzahl Patientenparkplätze
2
Entfernung nächste Bushaltestelle zur Praxis
1min
Infrastruktur Verkehr
Bus vor der Tür Regionalbahn fußläufig 10-15min (Wandlitz und Wandlitzsee)
Infrastruktur Medizin
Zahnarzt im Haus nebenan Praxis für Allgmeinmedizin 50m weiter Kinderarzt, Physiotherapie und Apotheke ggü Orthopädiepraxen (2x) im Ort Urologe im Ort.

Inventar

Anzahl der Praxisräume
3
Beschreibung und Ausstattung der Praxisräume
Unmöbliert, frei gestaltbar, Fußbodenheizung, gefliester Boden in allen Räumen (mit Fliesensockel) Wasseranschluss in allen Räumen vorhanden, zusätzliche Waschbecken können angebracht werden barrierefreies WC vor dem Praxiseingang.
Bodenbelag
Fliesen
Nein
Nein

Empfang/Wartebereich

Wartezimmer
14,8

Sprechzimmer
10,76

Eingriffsraum oder Sprechzimmer

Sprechzimmer
11,86

Aufenthaltsraum Personal

Sonstiges
9,88

Wintergarten

Sonstiges
9,01

Medizinische Infrastruktur

Filter

Filter Ärzte
    Filter Klinik
      Filter Heilberater

        Ansprechpartner

        Herr Dr. med.
        XXX
        XXX
        XXX
        XXX

        Expose

        Bitte registrieren oder einloggen, um alle Details zu sehen.

        Zur Registrierung / Login

        Arztbörsen Ratgeber & Broschüren

        Standortanalyse & Geomarketing

        Arztbörsen Services

        Inserieren