Zurück zur Ergebnisliste Biete Praxisimmobilie ID 13985

Praxisräume Arzt Physiotherapie 112 qm ab 02 2020 frei

Beschreibung

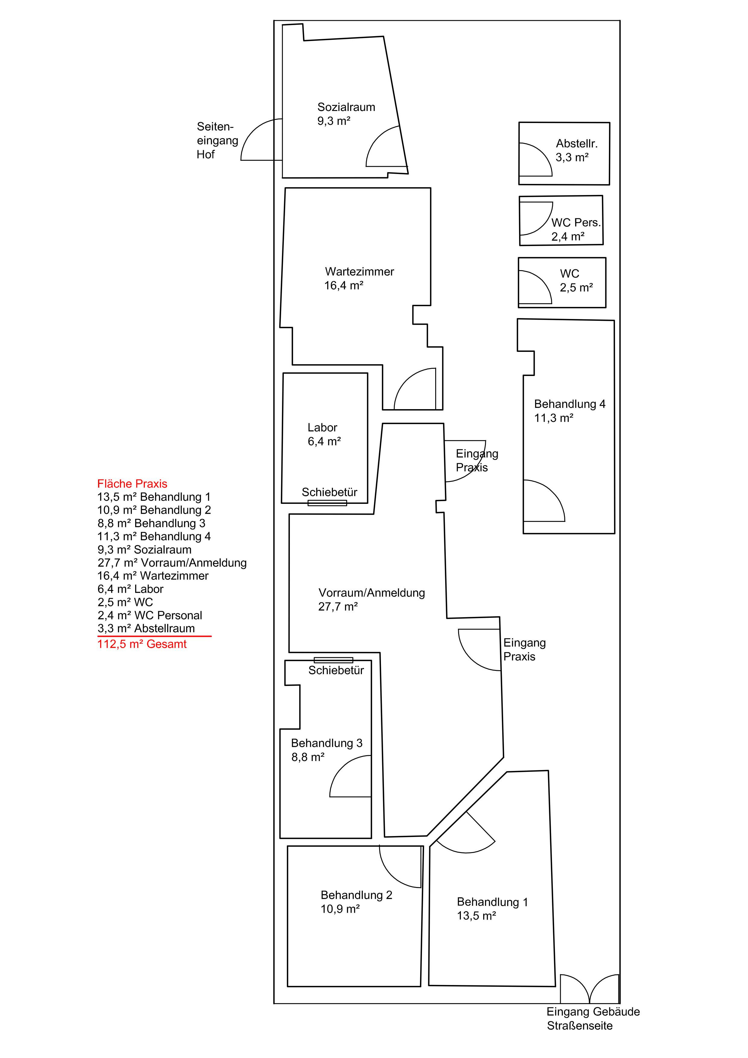
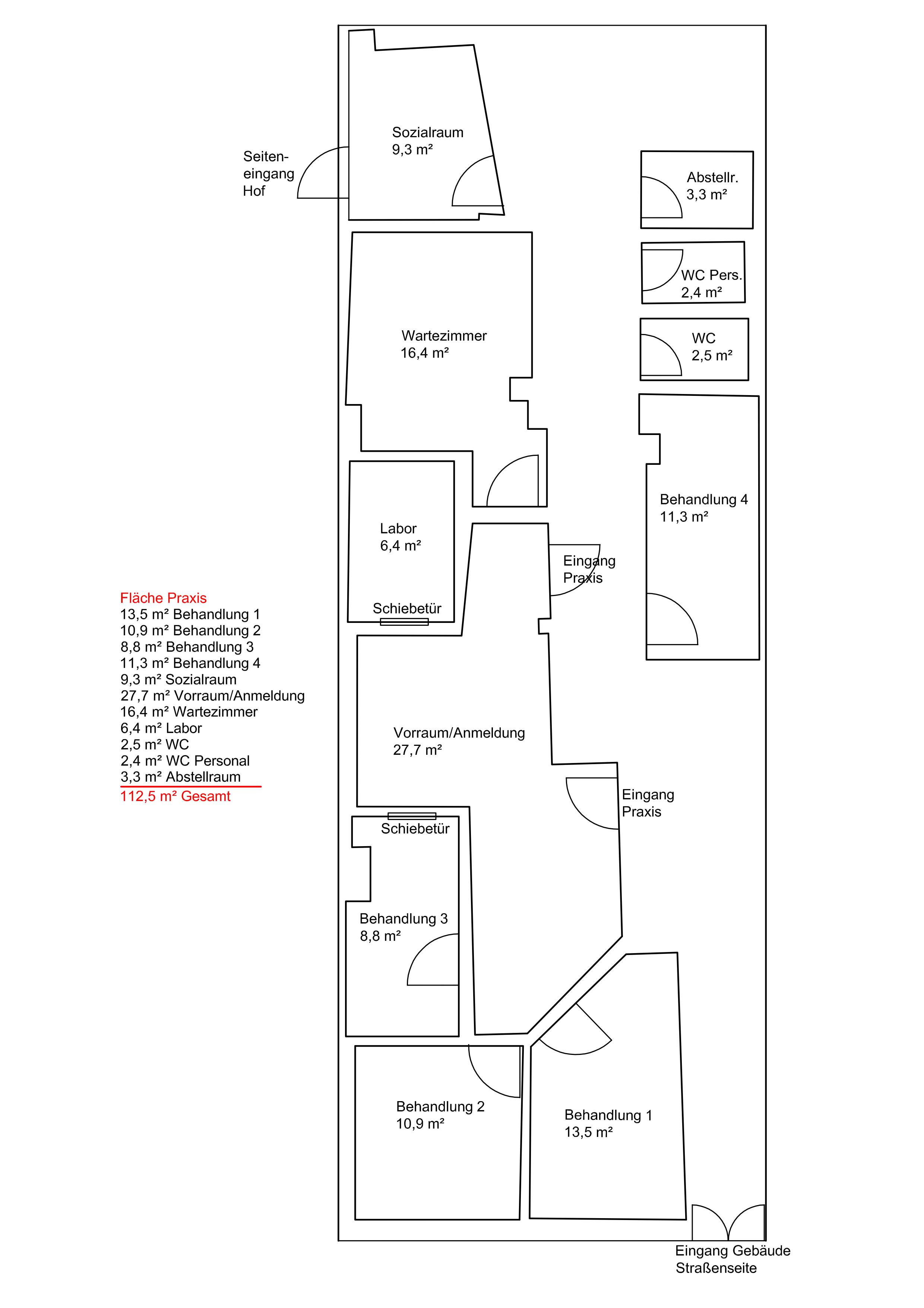
Ort: 91550 Bayern - Dinkelsbuehl. Fläche (qm): 112,50. Nebenkosten (Euro): 200. Provision: Provisionsfrei. Objektart: Praxen. Etage: EG. Heizungsart: Zentralheizung. Verfügbar ab Monat: 02, verfügbar ab Jahr: 2020. Lagebeschreibung: Nördlingerstraße in 91550 Dinkelsbühl. Etage: Erdgeschoss, Objektbeschreibung: Ab Februar 2020 frei: Praxisräume mit 112,5 m² Nutzfläche Aufteilung und Größen: Vorraum/Anmeldung: 27,7 m² Behandlung 1: 13,5 m² Behandlung 2: 10,9 m² Behandlung 3: 8,8 m² Behandlung 4: 11,3 m² Labor: 6,4 m² Wartezimmer: 16,4 m,² Sozialraum: 9,3 m² WC: 2,5 m² WC: Personal: 2,4 m² Abstellraum: 3,3 m² Objektzustand: Gepflegt Energie: Energieausweis vorhanden Energieverbrauchskennwert 197,7 kWh/(qm a) Energetisch gut modernisiert Kaution: 3 Monatsmieten Kaltmiete: VB

Adresse

Straße

XXX

Hausnummer

XXX

PLZ

XXX

Praxisort

XXX

Land

XXX

Praxisdetails

Bezugsfertig ab

02/2020

Neubezug

Nein

Bisheriger Praxistyp

Einzelpraxis

Geeignet als Praxistyp

Einzelpraxis

Weitere Fachgebiete im Haus

Keine

Kaufpreis/Mietzins

XXX
Kein Makler

Immobilie

Gebäudetyp
Praxisräume, Praxisetage, Wohn-Praxisgebäude
Gebäudeart
Altbau - Saniert
Lage der Praxisräume (Etage)
EG
Fahrstuhl vorhanden
Erdgeschoss
Größe der Arztpraxis in qm
ca. 112 m²
Lage und Infrastruktur
Einwohnerzahl des Praxisortes
12.000

Inventar

Medizinische Infrastruktur

Filter

Filter Ärzte
    Filter Klinik
      Filter Heilberater

        Ansprechpartner

        Herr Dr. med.
        XXX
        XXX
        XXX
        XXX
        030/111 xxx 222

        Expose

        Bitte registrieren oder einloggen, um alle Details zu sehen.

        Zur Registrierung / Login

        Arztbörsen Ratgeber & Broschüren

        Standortanalyse & Geomarketing

        Arztbörsen Services

        Inserieren