Zurück zur Ergebnisliste Biete Praxisimmobilie ID 20694

Praxisräume im Neubaugebiet Springbach Höfe zu vermieten

Beschreibung

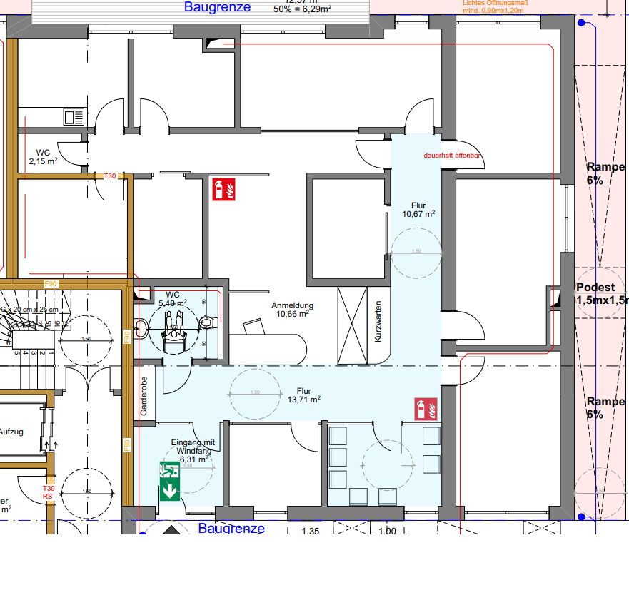
Es werden 190 qm große Praxisräume in einem Neubau, im Osten Paderborns, dem Neubaugebiet der Springbach Höfe angeboten. Die Praxisräumlichkeiten befinden sich im Erdgeschoss, mit eigenem Zugang in einem Wohn- und Geschäftshaus. Nebenan zieht ein Physiotherapeut ein und ein kleines Cafe. Das Praxisgebäude liegt zentral an einem Marktplatz. Parkplätze sind sowohl an der Straße, als auch in der eigenen Tiefgarage vorhanden.

Adresse

Straße

XXX

Hausnummer

XXX

PLZ

XXX

Praxisort

XXX

Land

XXX

Praxisdetails

Bezugsfertig ab

August 2023

Neubezug

Ja

Bisheriger Praxistyp

Ohne

Weitere Fachgebiete im Haus

Physikalische und Rehabilitative Medizin

Kaufpreis/Mietzins

XXX
Kein Makler
Angabe zum Kaufpreis nur im persönlichen Gespräch
Sofort
2300
350

Immobilie

Gebäudetyp
Praxisetage, Wohn-Praxisgebäude , Wohn-Geschäftsgebäude
Gebäudeart
Neubau
Baujahr
2023
Lage der Praxisräume (Etage)
Im Erdgeschoss, das Stockwerk wird aufgeteilt. ein kleines Cafe und eine Physiotherapiepraxis
Barrierrefreie Praxis
Ja
Fahrstuhl vorhanden
Ja
Größe der Arztpraxis in qm
190
Weitere Mieter im Haus
Physiotherapeut, Cafe
Lage und Infrastruktur
Lage der Praxis im Ort
Neubaugebiet, Wohngebiet,  gegenüber eines Einkaufzentrums, drei km entfernt von der Innenstadt.
Anzahl Dienstparkplätze
Es stehen 5 Parkplätze in der Tiefgarage zu Verfügung, Nutzung auch für Patienten möglich
Anzahl Patientenparkplätze
Es stehen 5 Parkplätze in der Tiefgarage zu Verfügung, Nutzung auch für Patienten möglich
Entfernung Kita zur Praxis
500m
Entfernung Grundschule zur Praxis
2 km
Entfernung Oberschule zur Praxis
1,5 km
Entfernung nächste Bushaltestelle zur Praxis
100 m
Entfernung nächste Straßenbahnhaltestelle zur Praxis
-
Entfernung nächste U-Bahn Haltestelle zur Praxis
-

Inventar

Anzahl der Praxisräume
5 Behandlungsräume
Beschreibung und Ausstattung der Praxisräume
Siehe Grundriss. Es können noch Änderungen vorgenommen werden. Auch bei der Elektroinstallation können noch Wünsche geäußert werden.
Bodenbelag
muss selbst verlegt werden
Ja
Nein

Medizinische Infrastruktur

Filter

Filter Ärzte
    Filter Klinik
      Filter Heilberater

        Ansprechpartner

        Herr Dr. med.

        Expose

        Bitte registrieren oder einloggen, um alle Details zu sehen.

        Zur Registrierung / Login

        Arztbörsen Ratgeber & Broschüren

        Standortanalyse & Geomarketing

        Arztbörsen Services

        Inserieren