Zurück zur Ergebnisliste Biete Praxisimmobilie ID 16599

Praxisräume in Neubau zum 01.01.2022 im südlichen Landkreis Leer (Ostfriesland) zu vermieten

Beschreibung

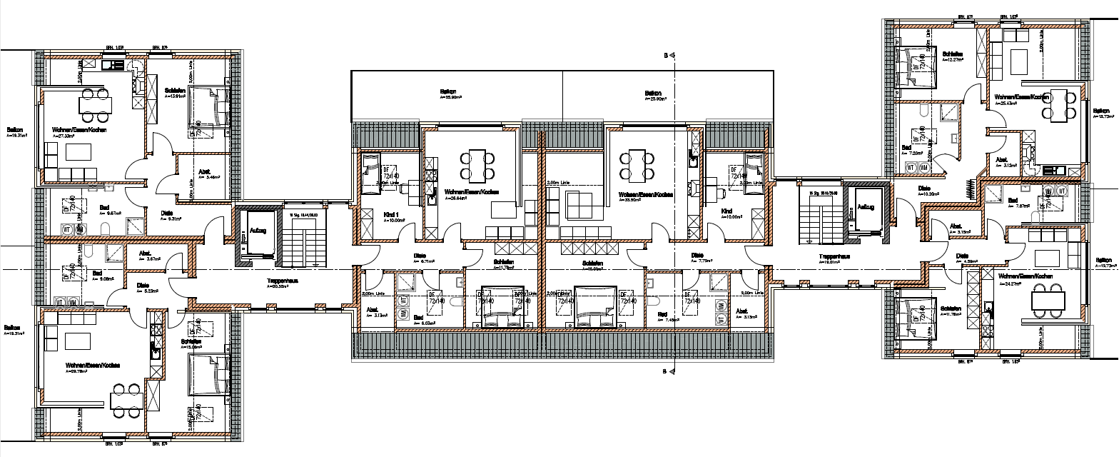
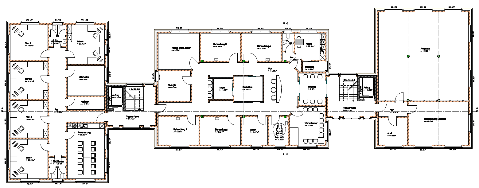
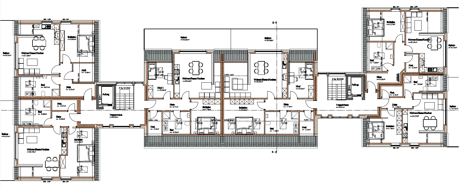
Zum 01.01.2022 (evtl. 01.10.2021) bieten wir Praxisräume für Gesundheitsdienstleister in einem modernen Neubau an. Derzeit entstehen drei schicke Gebäude für ein Gesundheitszentrum im Ortskern von Flachsmeer. Im ersten Gebäude wird im EG eine Apotheke eröffnen. Das 1. OG wird einerseits an einen Pflegedienst vermietet. Andererseits stehen hier weitere ca. 130 qm für eine kleine Praxis oder andere Gesundheitsdienstleister bereit. Die Fläche ist frei planbar.

Das mittlere Gebäude mit einer Grundfläche von ca. 240 qm wird im Erdgeschoss eine allgemeinmedizinische Praxis beherbergen. Im 1. OG steht eine entsprechende Fläche für z.B. eine Praxis zur Verfügung (Fläche frei planbar). Weiterhin ist dieses Gebäude komplett unterkellert.

Im dritten Gebäude wird im EG und 1. OG eine Steuerkanzlei einziehen.

Die Aussengebäude werden jeweils über ein Treppenhaus mit je rettungsdienst-geeignetem Fahrstuhl mit dem Zentralgebäude verbunden sein. Über die Treppenhäuser werden die im Dachgeschoss untergebrachten, altersgerechten Wohneinheiten (je Gebäude 2 Wohnungen) erreichbar sein.

Adresse

User möchte die genaue Adressdaten nur im persönlichen Gespräch bekanntgeben

Praxisdetails

Bezugsfertig ab

01.01.2022

Neubezug

Ja

Bisheriger Praxistyp

Ohne

Geeignet als Praxistyp

Einzelpraxis, Berufsausübungsgemeinschaft (BAG), MVZ, Praxisgemeinschaft, KV-Sitz, Privatpraxis

Geeignet für folgende Fachgebiete

Alle

Weitere Fachgebiete im Haus

Hausarzt, Allgemeinmedizin

Kaufpreis/Mietzins

XXX
Kein Makler

Immobilie

Gebäudetyp
Wohn-Praxisgebäude , Bürogebäude, Gesundheitszentrum
Gebäudeart
Neubau
Baujahr
2020-2021
Lage der Praxisräume (Etage)
1. OG
Barrierrefreie Praxis
Ja
Fahrstuhl vorhanden
Ja
Größe der Arztpraxis in qm
Praxis 1 240 qm und Praxis 2 ca. 130 qm
Weitere Mieter im Haus
Apotheke, Pflegedienst, Hausarztpraxis
Lage und Infrastruktur
Lage der Praxis im Ort
zentral
Anzahl Dienstparkplätze
20
Anzahl Patientenparkplätze
20
Entfernung Kita zur Praxis
500 m
Entfernung Grundschule zur Praxis
800 m
Entfernung Oberschule zur Praxis
1,5 km
Entfernung nächste Bushaltestelle zur Praxis
50 m
Entfernung nächste Straßenbahnhaltestelle zur Praxis
keine
Entfernung nächste U-Bahn Haltestelle zur Praxis
keine
Infrastruktur Verkehr
Nähe Hauptstraße Ortskern
Infrastruktur Medizin
Entfernung 300 Meter Optiker
                       500 Meter Zahnarzt
                       700 Meter Kinderärzte
                       700 Meter Gynäkologen
                       700 Meter Hausarzt
Infrastruktur Bildung und Freizeit
breites Angebot siehe
Einwohnerzahl des Praxisortes
ca. 3000 Einwohner

Inventar

Anzahl der Praxisräume
frei gestaltbar
Beschreibung und Ausstattung der Praxisräume
frei gestaltbar
Ja
Name/Anschrift/Link zur Hausverwaltung
IWOL GmbH & Co. KG, Buschdornkamp 3, 26810 Westoverledingen

Medizinische Infrastruktur

Filter

Filter Ärzte
    Filter Klinik
      Filter Heilberater

        Ansprechpartner

        Herr Dr. med.
        XXX
        XXX
        XXX
        XXX
        030/111 xxx 222
        030/111 xxx 222

        Expose

        Bitte registrieren oder einloggen, um alle Details zu sehen.

        Zur Registrierung / Login

        Arztbörsen Ratgeber & Broschüren

        Standortanalyse & Geomarketing

        Arztbörsen Services

        Inserieren