Zurück zur Ergebnisliste Biete Praxisimmobilie ID 21333

Sehr attraktive Praxisfläche im Stadtkern von Wuppertal Ronsdorf

Beschreibung

Objektbeschreibung: Sehr attraktive Büro- / Praxisfläche im Stadtkern von Wuppertal Ronsdorf. In diesem modernen und stadtbekannten Gebäude (auch Rathaus Wuppertal Ronsdorf genannt) befinden sich folgende Nutzer: - Bürgerbüro Wuppertal Ronsdorf - Bezirksvertretung Wuppertal Ronsdorf - Stadtbibliothek - Bergische Musikschule - eine große Zahnarztpraxis - IT-Büro - ein ansprechendes, sehr gut frequentiertes Café / Bistro - ein etablierter Drogeriemarkt, Betreiber ist DM. Eine überdurchschnittliche Kundefrequenz ist somit gewährleistet

Adresse

User möchte die genaue Adressdaten nur im persönlichen Gespräch bekanntgeben

Praxisdetails

Bezugsfertig ab

Absprache

Neubezug

Nein

Bisheriger Praxistyp

Einzelpraxis

Geeignet für folgende Fachgebiete

Hausarzt, Chirurgie, Allgemeinmedizin, Dermatologie, Endokrinologie, Gastroenterologie, Gynäkologie, HNO, Innere Medizin, Kardiologie, Nephrologie, Onkologie, Orthopädie (nicht operativ), Plastische und Ästhetische Chirurgie, Pneumologie, Unfallchirurgie und Orthopädie, Urologie, Neurologie

Weitere Fachgebiete im Haus

Zahnarzt

Kaufpreis/Mietzins

XXX
Käufer/Mieter
Angabe zum Kaufpreis nur im persönlichen Gespräch
Sofort
2700
1500

Immobilie

Gebäudetyp
Praxisräume, Praxisetage, Wohn-Praxisgebäude , Wohn-Geschäftsgebäude
Gebäudeart
Neubau
Lage der Praxisräume (Etage)
2. OG - halbe Etage
Barrierrefreie Praxis
Ja
Fahrstuhl vorhanden
Ja
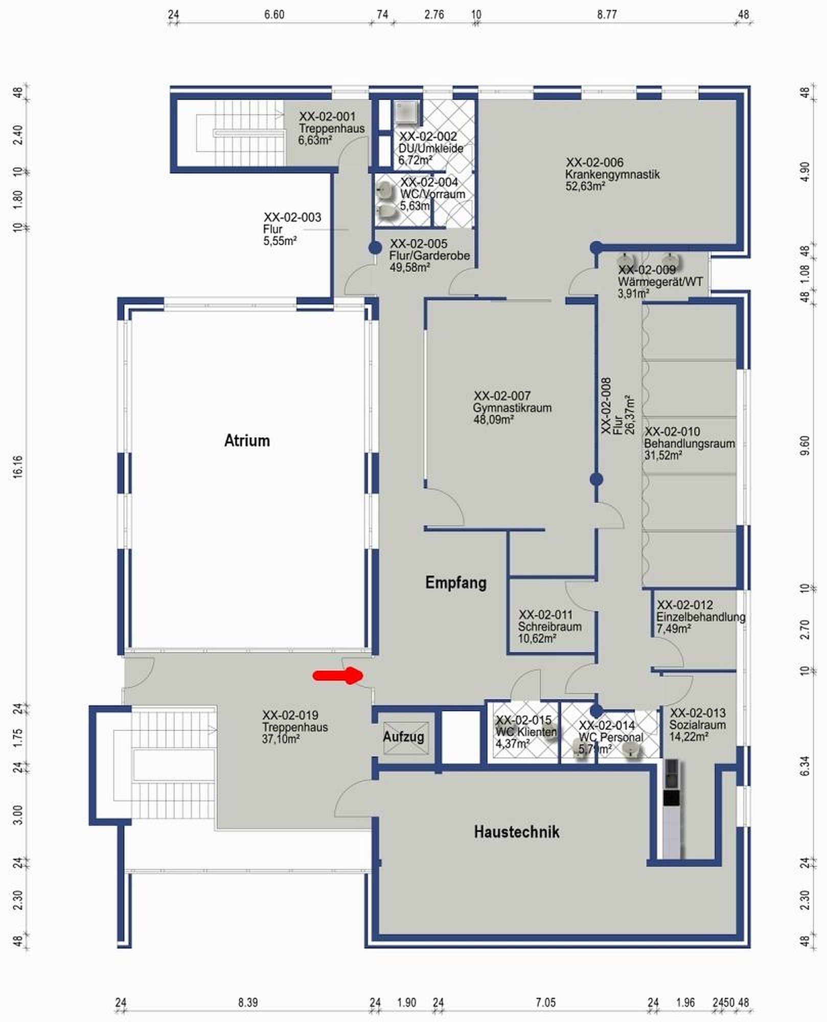
Größe der Arztpraxis in qm
270
Weitere Mieter im Haus
Zahnarzt, Einwohnermeldeamt, Stadtbücherei, Drogeriemartkt, Cafe / Restaurant
Lage und Infrastruktur
Lage der Praxis im Ort
Der Stadtteil Ronsdorf zählt mit zu den am meisten gefragten Wohnquartieren in Wuppertal. Interessant ist, dass nahezu viele deutsche Großbanken eine Filiale in W-Ronsdorf vorhalten. Die Filiale der Stadtsparkasse, welche direkt vis a vis zu finden ist, ist ebenso eine der großen Filialen in Wuppertal. Der Einzelhandel ist geprägt von zahlreichen kleineren Geschäften mit ausgesuchter Ware und wirkt persönlicher als anderswo. Das Einkaufen ist bei einigen Discountern bis 24:00 Uhr möglich. Alle Preisangaben verstehen sich zzgl. der gültigen MwSt. in Höhe von z. Zt. 19%. Provision 2 Monatsnettomieten zzgl. MwSt. Provision.

Inventar

Beschreibung und Ausstattung der Praxisräume
Komfortable Ausstattung mit nachfolgenden Details: - Klimatisiert - Lüftungsanlage mit Wärmerückgewinnung - Elektrische Sonnenschutzjalousien außen - Barrierefreie Erreichbarkeit - WC für Rollstuhlfahrer geeignet - EDV-Verkabelung - Attraktives Entrée - Repräsentativer, barrierefreier Zugang - Parkmöglichkeiten im hauseigenen Parkhaus (Ein namhafter Parkhausbetreiber sorgt für einen reibungslosen Betrieb) Eventuelle Änderungen oder Anpassungen in der angebotenen Fläche können im Detail besprochen werden. Die Fläche wäre als großes Büro oder Physiotherapie / Präventions- bzw. Arztpraxis ideal nutzbar. Über Umbaumaßnahmen / -Kosten kann gesprochen werden.
Ja

Medizinische Infrastruktur

Filter

Filter Ärzte
    Filter Klinik
      Filter Heilberater

        Ansprechpartner

        Herr Dr. med.
        XXX
        XXX
        XXX
        XXX
        030/111 xxx 222

        Expose

        Bitte registrieren oder einloggen, um alle Details zu sehen.

        Zur Registrierung / Login

        Arztbörsen Ratgeber & Broschüren

        Standortanalyse & Geomarketing

        Arztbörsen Services

        Inserieren