Zurück zur Ergebnisliste Biete Praxisimmobilie ID 15896

Zentrale Praxisimmobilie am Marktplatz Schweinfurt in gepflegtem Ärzte-/Bürohaus zu vermieten

Beschreibung

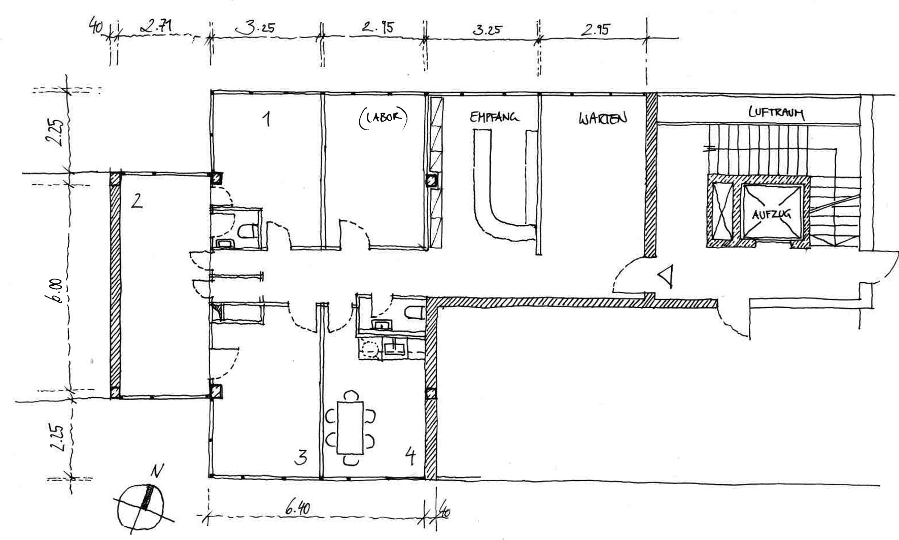
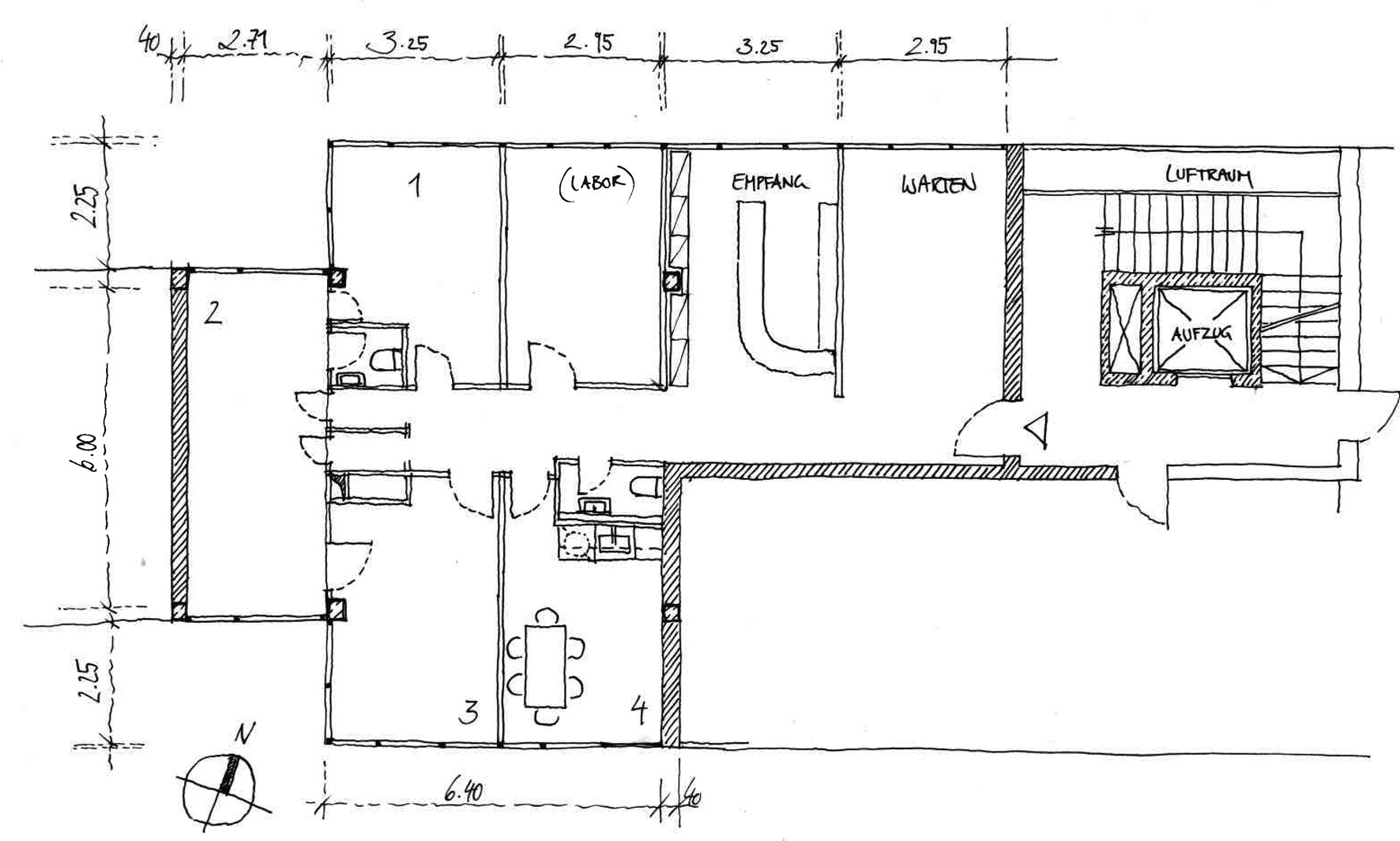
Helle, zentral gelegene Räume für Arzt-/ Therapiepraxis in gepflegtem, repräsentativem Ärzte-/Bürohaus ab sofort langfristig zu vermieten. Bisherige Nutzung als Praxis für Innere Medizin mit 122m², aufgeteilt in 4 Räume + Empfang + Wartezimmer sowie 2 separate WC´s. Eine Neueinteilung des Grundrisses ist denkbar. Alle Räume verfügen über eine großzügige Verglasung (Wärmeschutzglas 2018) und außenliegende, drehbare Sonnenschutz-Jalousetten.
2. OG mit Aufzug barrierefrei erreichbar, hauseigene Tiefgarage mit PKW-Stellplatz, öffentliches Parkhaus/ Parkflächen in unmittelbarer Fußnähe.
Sehr gute Anbindung an öffentliche Verkehrsmittel und Taxi, beste Infrastruktur aufgrund der Innenstadtlage (Marktplatz, Fußgängerzone).

Adresse

PLZ

XXX

Praxisort

XXX

Land

XXX

Praxisdetails

Bezugsfertig ab

Sofort

Bisheriger Praxistyp

Einzelpraxis

Gründungsjahr der vorherigen Praxis

1986

Geeignet als Praxistyp

Einzelpraxis, Berufsausübungsgemeinschaft (BAG), Praxisgemeinschaft, Privatpraxis

Geeignet für folgende Fachgebiete

Hausarzt, Allgemeinmedizin, Anästhesie, Angiologie, Arbeitsmedizin, Dermatologie, Endokrinologie, Gastroenterologie, Gynäkologie, Hämatologie, HNO, Humangenetik, Innere Medizin, Kardiologie, Kieferorthopädie, Kinder- und Jugendpsychiatrie, Kinder- und Jugendpsychotherapie, Labormedizin, MKG, Nephrologie, Nuklearmedizin, Onkologie, Augenheilkunde, Orthopädie (nicht operativ), Pädiatrie, Physikalische und Rehabilitative Medizin, Plastische und Ästhetische Chirurgie, Pneumologie, Psychiatrie, Psychotherapie und Psychosomatische Medizin, Radiologie, Rheumatologie, Urologie, Zahnarzt, Neurologie

Weitere Fachgebiete im Haus

Anästhesie, Gynäkologie, Innere Medizin, Orthopädie (nicht operativ)

Kaufpreis/Mietzins

XXX
Kein Makler

Immobilie

Gebäudetyp
Praxisräume, Praxisetage, Ärztehaus
Gebäudeart
Altbau - Saniert
Baujahr
1972
Letzte Sanierung der Praxis
2018
Lage der Praxisräume (Etage)
2.OG, Aufzug, halbe Praxisetage
Barrierrefreie Praxis
Ja
Fahrstuhl vorhanden
Ja
Größe der Arztpraxis in qm
122
Weitere Mieter im Haus
DAK-Gesundheits-Servicezentrum, Bank, Apotheke gegenüber
Lage und Infrastruktur
Lage der Praxis im Ort
Zentrale Lage zwischen Marktplatz, Martin-Luther-Platz und Roßmarkt, daher sehr gute Anbindung an öffentliche Verkehrsmittel sowie Taxi.
Beste Infrastruktur aufgrund der Innenstadtlage (Fußgängerzone) mit zahlreichen Gaststätten, Läden und Einrichtungen.
Anzahl Dienstparkplätze
1 ggf. mehr
Anzahl Patientenparkplätze
öffentliche Parkflächen und Parkhaus (fußläufig)
Entfernung nächste Bushaltestelle zur Praxis
3 Min.
Infrastruktur Verkehr
Bus/ Bahn/ Taxi: Zentraler Busbahnhof 5 Min. zu Fuß, mit Anbindung an HBF Schweinfurt (8 Min. Fahrzeit). Marktplatz mit Taxi und weiteren Buslinien: 2 min. zu Fuß. PKW: öffentliche Parkflächen und Parkhaus (fußläufig), Haltemöglichkeit auf Parkstreifen in unmittelbarer Nähe Haupteingang.
Infrastruktur Bildung und Freizeit
Theater, Museen in unmittelbarer Nachbarschaft, Schulen, Gymnasien etc in Innenstadtlage vorhanden.
Einwohnerzahl des Praxisortes
54.000

Inventar

Anzahl der Praxisräume
4-5
Beschreibung und Ausstattung der Praxisräume
Die Praxisräume sind aktuell ohne Inventar und renoviert, in dem 5.Praxisraum befindet sich eine Teeküche, die auf Wunsch übernommen werden kann. Empfang und Wartezimmer sind momentan zum zentralen Flur hin offen. (siehe Grundriss)

-abgehängte Decke (revisionierbar in allen Bereichen)
-bodentiefe Fenster (WSV 2018)
-außenliegender Sonnenschutz mit Möglichkeit zu verdunkeln
-solide Bausubstanz, gute Instandhaltung: Natursteinfassade, Stahlbeton-Skelettbauweise
Bodenbelag
elastischer Belag
Nein
Ja

Medizinische Infrastruktur

Filter

Filter Ärzte
    Filter Klinik
      Filter Heilberater

        Ansprechpartner

        XXX
        XXX
        XXX

        Expose

        Bitte registrieren oder einloggen, um alle Details zu sehen.

        Zur Registrierung / Login

        Arztbörsen Ratgeber & Broschüren

        Standortanalyse & Geomarketing

        Arztbörsen Services

        Inserieren