Zurück zur Ergebnisliste Objekt ID 18821

Nachbesetzung Psychotherapiesitz (Kinder und Jugendliche-Verhaltenstherapie) mit Immobilie

Arztpraxis Beschreibung

Nachbesetzung einer Praxis für Kinder- und Jugendlichenpsychotherapie aus Altersgründen und Gründen einer Neuorientierung.
Verkauf der Praxis nur mit der Gesamtimmobilie.
Die Nachbesetzung des Sitzes allein ist für mich nachrangig.
Wohnen und arbeiten unter einem Dach.
Praxis 2012 mit spezifischem Bauantrag (Nutzungsänderung) eingerichtet sowie bau- und brandschutztechnisch abgenommen.
Praxisbereich durch Treppenhaus vom Privatbereich abgetrennt. 
Nachbesetzungsantrag für den Sitz kann unter Benennung des Interessenten für das Gesamtpaket Haus und Praxis gestellt werden.
Jedoch wird die Immobilie, ab ca. Frühjahr 2023, auch ohne Sitz verkauft.
Ich möchte jedoch die Gelegenheit bieten, das Gesamtpaket zu übernehmen, was eine sehr lukrative und einmalige Gelegenheit ist, sich in ein gemachtes Nest zu setzen und einen notwendigen Versorgungsauftrag in diesen Zeiten zu übernehmen.

Genauere Beschreibungen des Praxisanteiles folgen. Die Gesamtimmobilie wird hier auch in einem gesonderten Inserat vorgestellt. Die Praxis könnte jedoch auch  durch andere Heilberufe, oder als Privatpraxis  genutzt werden.
Erste Anfragen über: elmarberger@t-online.de

Adresse

Straße

XXX

Hausnummer

XXX

PLZ

XXX

Praxisort

XXX

Land

XXX

Details der Arztpraxis

Fachgebiet

Kinder- und Jugendpsychotherapie

Schwerpunkte und Zusatzbezeichnungen

Psychotherapie

Weitere, nicht gelistete Schwerpunkte

Nachbesetzungsverfahren über KVWL

Praxistyp

Einzelpraxis

Praxis oder Praxisanteil

Gesamte Praxis

Abrechnung

KV

Gründungsjahr der Praxis

2012

Übergabedetails

Abgabedatum

ab Anfang 2023

Abgabegrund

Alter, Umzug

Alter des Abgebers

63

Weitere Mitarbeit des Praxisverkäufers gewünscht

Nein

Rücktrittsrecht des Übernehmers

Ja

Rechtsmittelverzicht des Übernehmers

Ja

Umsatz / Patienten / Kosten

Wert der Arztpraxis

XXX
XXX
XXX

Patientenstruktur

45
20
60
20
0
0

Kaufpreis der Arztpraxis

XXX
Festpreis
Nach Vereinbarung

Einnahmesituation

Nachbesetzung des Kassensitzes nur relativ kurze Zeit im Zusammenhang mit dem Kauf der Gesamtimmobilie, welche auch gesondert auf dieser Plattform  inseriert ist (näheres zur Immobilie siehe dort).
Das Gesamtpaket stellt eine einmalige Möglichkeit dar, sich mit Eigentum und einer (voraussichtlichen) Kassenzulassung selbstständig zu machen.
Hierzu müssen jedoch die persönlichen Bedingungen passen. Also ins Sauerland, in eine größere Immobilie ziehen zu wollen und die Qualifikationen für die Nachbesetzung (Psychotherapie - Verhaltenstherapie- Kinder und Jugendliche) erfüllen.

Ab Sommer 2022 wird auch ein Verkauf ohne spezifischen Sitz angestrebt, ggf. kann der Praxisteil auch für andere Heilberufe genutzt werden.

Flexible Umsatzmöglichkeiten, je nach investition von Arbeitszeit und Engagement
("gemütlich" 45-50 Patienten pro Quartal in der Abrechnung (bei mir keine Termine in den Schulferien) gut 100.000 € vor Steuern, ohne Privatpatienten). Einnahmen können daher noch entsprechend ausgeweitet werden. Abschreibungsmodell mit Eigentumsimmobilie kann übernommen werden. Einweisung hierzu erfolgt.
Hinzu kommt Abschreibung des Kaufpreises des Praxisanteiles.
Es ist keine Patientenübernahme geplant, um einen sauberer Schnitt bezüglich der Patientenakten und Zuständigkeiten zu ermöglichen. 
Aber Übernahme der Praxisinfrastruktur mit TI, EDV, Software möglich. Einweisung kann bis zur Funktionafähigkeit bei Übenahme erfolgen, auch gerne für Neueinsteiger.
Regional sehr umfassende Infrastruktur zur Kinder- und Jugendhilfe.
Somit kann schnelle Patientenzuführung, nach kurzer Integrationsphase angenommen werden, sofern entsprechend persönliches  Engagement vorhanden (Werbung, Vorstellungen). Auch hierzu erfolgen neutrale Einweisungen und Vermittlungen. Ich habe die Praxis mit Unterstützung einer 450€ Kraft geführt (Absetzung unter Ehegattengehalt und selbstverständlich mit entsprechenden Anmeldungen).
100.000 - 150.000

Durchschnittlicher Umsatz pro Quartal

Durchschnittlicher Fallwert in Euro

Ausgabesituation

Die laufenden Ausgaben für Psychotherapiepraxen halten sich gegenüber den Einnahmen in überschaubare Grenzen. Bei Beschränkung der freiberuflichen Tätigkeit auf die Praxiseinnahmen, liegt eine Umsatzsteuerbefreiung vor. Es genügt eine einfache EÜR- Einnahme-Überschuss-Rechnung (mit Softwareunterstützung auch für Leien möglich). Wer möchte, kann damit auch auf einen Steuerberater verzichtet.  
Eine umfassende Betriebsprüfung durch das Finanzamt ist erfolgt und hat die Betriebsbedingungen in dieser Immobilie verifizieren können und akzeptiert.
Einige Kosten werden durch die KVWL refinanziert.
Mietausgaben fallen bei Eigentum weg. Kammer und Versorgungswerk fordern ihre Pflichtbeiträge. Warum aber die Ausgabensituation auch eine Frage des Alters ist?
Hier einige wichtige Aspekte.
Es ist für ältere (45-50), die sich selbstständig machen wollen, einiges zu beachten, da es sehr sehr nachteilig für die eigene Rentensituation sein kann,  von der gesetzlichen Rentenversicherung zum Versorgungswerk wechseln zu müssen, und das muss man. Eine Renteberatung wird hier, von Seiten des Versorgungswerkes vergeblich erwartet. Aber man wird regelmäßig fröhlich über die gute Einnahmensituation des Versorgungswerkes informiert. Die Berechnungssimulation nach 10 Jahren normaler Einzahlung von Beginn der Selbstständigkeit an (mit vorgesehenen Schonzeiten, die man dann ja  gerne wahrnimmt), ergibt nicht nur ein trauriges Bild, sondern erscheint als "Versorgung" für den Selbstständigen (mit vorhergehender gesetzlicher Rentenversicherung), in dieser Stellung geradezu prekär. Man stellt sich da besser, wenn man seine 45 Jahre dann laufend gesetzlich versichert bliebe!! Vorsicht, wenn im Vorfeld die 35 Jahre gesetzliche Rente nicht voll sind! Dann droht eine Arbeitspflicht bis zum regulären Renteneintritt mit alle Konsequenzen. Standardargument ist hier (im  Nachhinein), dass man eben mehr einzahlen und Rücklagen bilden sollte. Es sollte in Erwägung gezogen werden diesem uneigennützigen und gernerationenorientierten (je älter, desto mehr einzahlen und das möglicht lange) Rat zu befolgen, oder anderweitig Rücklagen zu bilden.
Eigentum ist auch da die beste Anlage, damit man mit der dann folgenden Altersarmut klarkommt.  Da viele jedoch bis in die zweite Lebenshälfte hinein für ihre  anspruchsvolle Ausbildung brauchen, fehlen oft die Renteneinzahlungsjahre (denn nicht alle Ausbildungsstrukturen werden anerkannt). Also, mutig sein und sich so früh wie möglich selbstständig machen, und in Eigentum investieren oder lieber im sicheren Hafen der gesetzlichen Versicherung bleiben, um im Alter keine existentiellen Probleme zu bekommen!
Weitere Kosten kommen für Softwarelizenzen und -Pflege zusammen. Für die gesetzliche Krankenkasse muss man dauerhaft mit den Höchstsätzen rechnen. Auch hier ist Beratungsbedarf. Ältere sollten wohl lieber in der gesetzlichen Krankenkasse bleiben, müssen dann aber die Höchstsätze bezahlen.  Hier kann schon gesehen werden, dass die Ausgabensituation auch eine Frage des Alters sein kann. Nicht zu vergessen sind die Ausgaben sowie Verdienst- und Zeitausfälle für den erheblichen Fortbildungsaufwand im nachzuweisenden 5 -Jahresturnus (diese Ausgaben und Ausfälle sollten bald nach Beginn der Selbstständigkeit geplant werden). Naja, hier werden die Grenzen der Ausgaben dann doch unüberschaubarer. Aber ich biete hier eine umfassende und ergänzende Beratung, damit der Laden schnell und sicher läuft, soweit es die formalen Bedingungen angeht.
Insgesamt ist dieses Investitionsmodell (sofern Solvenz gegeben) unter diesen Bedingungen und bei einer planbaren Praxislaufzeit von 20 Jahren sehr lukrativ und das bei einer formal sehr guten Work-Life-Balance.
1350

Verbindlichkeiten

Keine Angabe

Praxisgebäude

Beschreibung Immobilie
Siehe auch Inserat zur Immobilie auf dieser Plattform.
Kauf oder Miete
Verkauf an Übernehmer
Gebäude Typ
Einzelgebäude, Wohn- und Praxisgebäude
Gebäudeart
Altbau - Saniert
Gebäude Baujahr
ca.1930
Letzte Sanierung der Praxis
laufend bis dato
Lage der Praxisräume (Etage)
gesamtes Erdgeschoß
Gesamtfläche der Praxis in qm
68
Barrierefreie Arztpraxis
Ja
Fahrstuhl
Nein
Anzahl Dienstparkplätze
2
Anzahl Patientenparkplätze
2
Netto-Miete pro Monat
0
Weitere Ärzte im Haus
Keine
Umfeld der Praxis
Lage der Praxis im Ort
Das Praxisgebäude liegt am nördlichen Ortsrand von Remblinghausen. Die Kreis- und Hochschulstadt Meschede ist über eine Bundesstraße zwischen Winterberg und Meschede verbunden, welche den Ort umgeht und liegt 5 km nördlich. Das Haus liegt an einem größeren Wendebereich von dem aus befestigte Landwirtschaftswege in die Mittelgebirgsnatur und zum Hennesee führen.
Entfernung Öffentliche Verkehrsmittel
350 m
Infrastruktur Verkehr
Obwohl der Ort regelmäßig stündlich von Bussen angefahren wird (Meschede-Winterberg-Schmallenberg), ist der Kraftfahrzeugverkehr grundlage der Mobilität. Ab Meschede besteht eine Ost-West-Verbindung Dortmund-Kassel. Meschede hat eine direkte Anbindung an die A 46. Die Autobahn verbindet direkt Meschede und das Ruhrgebiet und Dortmund mit Verwaltungssitz der KVWL.
Infrastruktur Medizin
Die medizinischen und psychosozialen Gesundheitsstrukturen sind vollständig vorhanden.
Die Kreisverwaltung (Hochsauerlandkreis) liegt von Remblinghausen aus direkt am Ortseingang Meschede. Ein allgemeines Krankenhaus und eine Tagesklinik der LWL-Klinik für Kinder- und Jugendpsychiatrie und Psychotherapie befinden sich zentral in Meschede.
Pflichtversorger ist die LWL-Klinik in Marberg. Es gibt eine größere Anzahl von Kinder und Jugendheimen, sowie ähnlich (Tages-) Kliniken für Erwachsene. Es gibt mehrere Gymnasien, Real- und Haupschulen.
Der regionale therapeutische Bedarf zur kassenärztlich ambulanten Versorgung kann zurzeit als sehr hoch eingschätzt werden. Die klinischen Bereiche kommen zurzeit an Ihre Grenzen, was an den Anmelderückmeldungen gesehen werden kann.  Meine Praxis war 2012 die erste Zulassung dieser Art in und für Meschede. Anschließend haben sich weitere Kollegen angesiedelt. Es besteht jedoch weiterhin hoher Entwicklungsspielraum zur Bildung von kooperativen Strukturen und entsprechend versorgungsorientierter Netzwerkarbeit. Hier bestehen für einen neuen Praxisinhaber jedoch sehr gute Chancen, mit neuem Engagement und Unvoreingenommenheit viel erreichen zu können.
Infrastruktur Bildung und Freizeit
Auch auf Grund der Nähe zur Kreis- und Hochschulstadt, dem Hennesee und der Winterberger Region, kann eine vollständige Infrastruktur im Bereich Bildung, Schule und Freizeit erwartet werden. Auch hier wird die Bedeutung einer professionellen, ambulanten Versorgung zum Wohle der Kinder und Jugendlichen, neben den angestammten klinischen Angeboten wohl, gerade zurzeit, realisiert werden.
Einwohnerzahl des Praxisortes
1100

Räume

Anzahl der Praxisräume
4 + Bad
Beschreibung und Ausstattung der Praxisräume
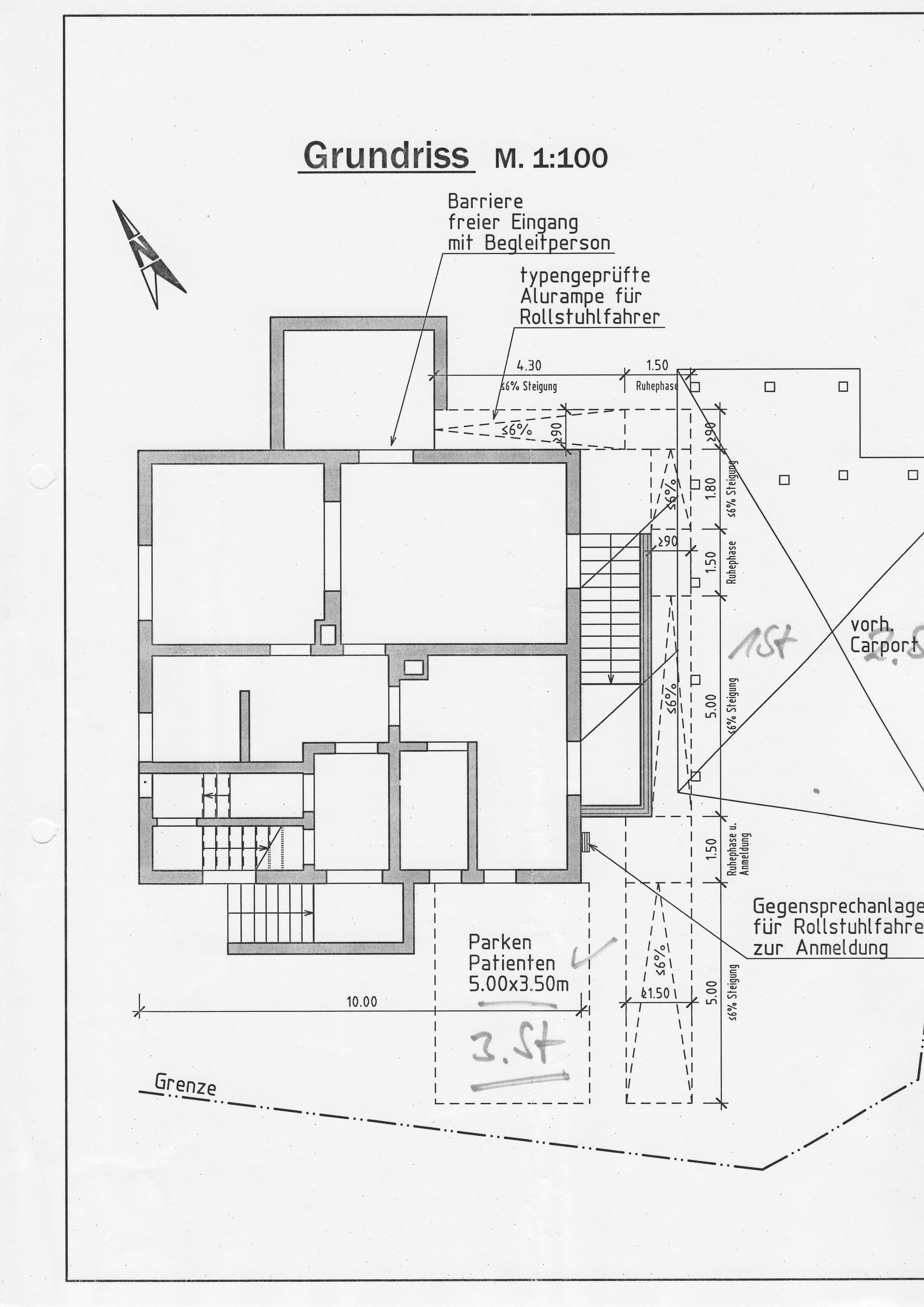
siehe Grundriß. Weitere Fotos folgen.

Inventar und Leistungsspektrum
Allgemeines Leistungsspektrum
2 größere Räume zur Durchführung der Verhaltenstherapie mit einer größeren Schiebetür zur Abtrennung. Wird meist offen genutzt. größerer Raum ca. 20qm auch für parallele motopädische Aktivitäten mit den Kindern möglich (Ballspiele, Kletterwand, Bodenmatte, Basketballkorb). (Weiterbildung zur Zusatzqualifikation Psychomotorik in diesem Sinne genutzt und von den Kindern sehr gern angenommen).
Zwischen Warteraum und Therapieräumen 2 Türen, welche original bereits breiter waren um den barrierefreien Standart zu entsprechen. Bad 2012 vollkommen neu renoviert und Barrierefrei.
Vorraum nach Praxiseingang mit Abtrennung zu einem Empfangs- Bürobereich.
Klingelanlage mit Videofunktion, auch zur Rollstuhlanmeldung (noch nie gebraucht).
Insgesamt also räumlich sehr komfortabel zur Einzeltherapie, auch Gruppentherapie gut möglich. Ggf. auch beide Therapieräume getrennt durch 2 Therapeuten nutzbar. Volles leitlinienorientiertes Leistungsspektrum für eine Verhaltenstherapie, aber auch andere Therapieformen (psychoanalytisch, systemisch, spieltherapeutisch) nutzbar.
Angebotene IGeL und Selbstzahlerleistungen
Privatpatienten und Selbstzahler gleiche Leistung möglich.
Geräteausstattung und Praxissoftware
Empfangsbereich mit Mac-Computer (über Bootcamp Windows 10), Fritz-Router und Ti Konnektor angeschlossen mit Praxissoftware (Epikur plus fälschungssicher). Epson Din-A 3 Drucker und Skanner, Sicherheitsreißwolf.
Aktuelle umfassende Diagnostikmaterialien, inklusive Auswertungsoftware zu WISK-V, CFT20, CBCL komplett, AFS usw. Adobe PDF Professionel. Microsoft Office, alles Dauerlizenzen. Im Therapieraum Whiteboard mit Minibeamer zum Anschluß an Laptop zur Ausgabe zur Psychoedukation. Gegebenenfalls Übernahme möglich. Somit alles sofort einsatzbereit.
Personalsituation
Beschreibung der Personalsituation
Zurzeit angemeldeter und versicherter Minijob auf 450€-basis, Krankenschwester unter anderem als Hygienefachkraft und für Büroarbeiten.
450 Euro Basis / Minijob

Verdienstkalkulator für die Praxisübernahme

Der Verdienstkalkulator gibt Ihnen als potentieller Praxisübernehmer:in eine Einschätzung der wirtschaftlichen Daten der angebotenen Arztpraxis. Rote Ziffern sind bundesweite Durchschnittswerte, grüne Ziffern wurden vom Praxisinhaber angegeben. Unten finden Sie in blau den wirtschaftlichen Praxisgewinn pro Monat, Quartal und Jahr. In den einzelnen Inseraten wird somit Ihr Einkommen angezeigt.

Praxiswert ermitteln

Sie können frei wählen, ob Sie das Ergebnis in Ihrem Inserat anzeigen wollen oder nicht. Bitte beachten Sie das es sich um eine individuelle Einschätzung ohne Gewähr handelt. Die Bewertungsmaßstäbe können Sie durch Anklicken des Fragezeichen Symbols einsehen.

Ergebnis

> 45 Punkte = Arztbörse Kaufempfehlung = höchste
35-44 Punkte = Arztbörse Kaufempfehlung = hoch
25-34 Punkte = Arztbörse Kaufempfehlung = überdurchschnittlich
0-24 Punkte = Arztbörse Kaufempfehlung = durchschnittlich
Bitte beachten, dass nicht ausgefüllte Felder das Ergebnis beeinflussen.

Medzinische Infrastruktur

Bitte registrieren oder einloggen, um alle Details zu sehen.

Zur Registrierung / Login

Filter

Filter Ärzte
    Klinik
      Filter Heilberater

        Kontaktdaten

        Ansprechpartner

        Herr Dr. med.
        XXX
        XXX
        XXX
        XXX

        Expose

        Bitte registrieren oder einloggen, um alle Details zu sehen.

        Zur Registrierung / Login

        Arztbörsen Ratgeber & Broschüren

        Standortanalyse & Geomarketing

        Arztbörsen Services

        Inserieren