Zurück zur Ergebnisliste Objekt ID 10920

Provisionsfreie Praxisflächen zu vermieten - Mainz-Kastel

Geschlossen

Arztpraxis Beschreibung

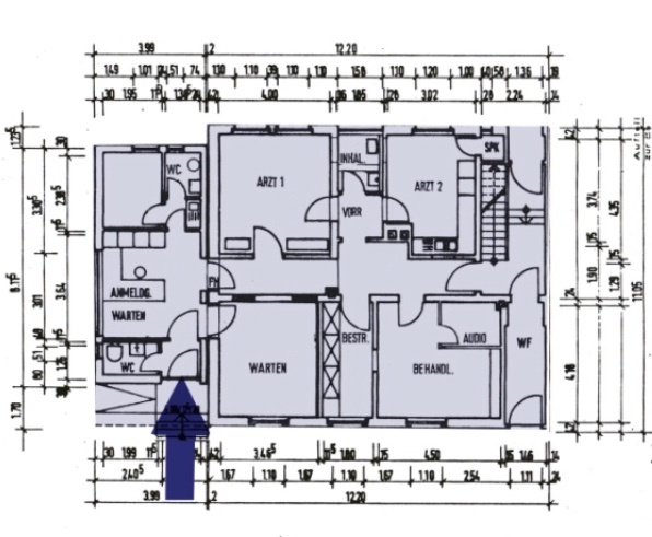
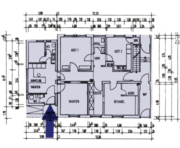
Äußerst attraktive und helle Praxis-/Büroräume im Erdgeschoss zu vermieten. Fläche: ca.120 qm. Aktuelle Räumlichkeiten: Die anzumietende Fläche verfügt aktuell über acht Räume, einen offenen Empfangsbereich, ein Wartezimmer, drei Behandlungszimmer davon eins mit einem integrierten Audiometrie-Zimmer, ein Labor, einen kleinen Anwendungsraum, einen Aufenthaltsraum für das Personal, ein Lagerraum und zwei sanitäre Einrichtungen.
Sehr effizienter Flächengrundriss. Raumaufteilung/Umbau oder Renovierung nach Absprache möglich.

Adresse

Straße

XXX

PLZ

XXX

Praxisort

XXX

Land

XXX

Details der Arztpraxis

Fachgebiet

Hausarzt, Allgemeinmedizin, Gynäkologie, HNO, Dermatologie, Pädiatrie, Neurologie, Urologie, Angiologie, Gastroenterologie, Kardiologie

Praxistyp

Einzelpraxis

Praxis oder Praxisanteil

Gesamte Praxis

Offener Planungsbereich

Nein

Planungsbereich mit Zulassungsbeschränkung

Ja

Übergabedetails

Abgabedatum

01.10.2018

Abgabegrund

Kein Angabe

Alter des Abgebers

Keine Angabe

Weitere Mitarbeit des Praxisverkäufers gewünscht

Nein

Umsatz / Patienten / Kosten

Wert der Arztpraxis

XXX
XXX
XXX

Patientenstruktur

60
40
0
0
0

Kaufpreis der Arztpraxis

Sofort

Einnahmesituation

 

Nur Praxisraumvermietung.
Keine Angabe

Durchschnittlicher Umsatz pro Quartal

Durchschnittlicher Fallwert in Euro

Ausgabesituation

Verbindlichkeiten

Praxisgebäude

Beschreibung Immobilie
Die zur Vermietung stehende Fläche erfüllt sowohl alle Anforderungen an eine Arztpraxis. Dieses Wohn- und Geschäftshaus besticht durch seine verkehrsgünstige Lage sowie dem separaten Eingang zur angebotenen Fläche. Das Objekt befindet sich in einem gepflegten Zustand. Der der Fläche zugeordnete Außenbereich ist ebenfalls nutzbar.
Nach Absprache kann die Raumaufteilung beziehungsweise Renovierung an die Wünsche des zukünftigen Mieters angepasst werden. 1 PKW-Stellplatz ist verfügbar.
Kauf oder Miete
Übernahme des Mietvertrages
Gebäude Typ
Praxisräume
Gebäudeart
Altbau - Saniert
Letzte Sanierung der Praxis
2013
Lage der Praxisräume (Etage)
EG
Gesamtfläche der Praxis in qm
120
Barrierefreie Arztpraxis
Ja
Fahrstuhl
Erdgeschoss
Anzahl Dienstparkplätze
1
Netto-Miete pro Monat
1400
Nebenkosten pro Monat
350
Mietvertragslaufzeit
Unbefristet
Weitere Ärzte im Haus
Keine
Umfeld der Praxis
Lage der Praxis im Ort
Das Objekt befindet sich in Mainz-Kastel in einer zentralen Lage. Bushaltestellen sowie der Bahnhof befinden sich in unmittelbarer Nähe und sichern eine einfache Anfahrt. Die Anschlüsse zur A 671 sowie zur A 66 befinden sich wenige Autominuten entfernt.
Entfernung Öffentliche Verkehrsmittel
3min

Räume

Anzahl der Praxisräume
aktuell 8
Beschreibung und Ausstattung der Praxisräume
Aktuelle Räumlichkeiten:
Die anzumietende Fläche verfügt aktuell über 8 Räume, einen offenen Empfangsbereich, ein Wartezimmer, 3 Behandlungszimmer davon eins mit einem integrierten Audiometrie-Zimmer, ein Labor, einen kleinen Anwendungsraum, einen Aufenthaltsraum für das Personal, ein Lagerraum und 2 sanitäre Einrichtungen.

Inventar und Leistungsspektrum
Personalsituation
Beschreibung der Personalsituation

 

Nur Praxisraumvermietung.

Verdienstkalkulator für die Praxisübernahme

Der Verdienstkalkulator gibt Ihnen als potentieller Praxisübernehmer:in eine Einschätzung der wirtschaftlichen Daten der angebotenen Arztpraxis. Rote Ziffern sind bundesweite Durchschnittswerte, grüne Ziffern wurden vom Praxisinhaber angegeben. Unten finden Sie in blau den wirtschaftlichen Praxisgewinn pro Monat, Quartal und Jahr. In den einzelnen Inseraten wird somit Ihr Einkommen angezeigt.

Praxiswert ermitteln

Sie können frei wählen, ob Sie das Ergebnis in Ihrem Inserat anzeigen wollen oder nicht. Bitte beachten Sie das es sich um eine individuelle Einschätzung ohne Gewähr handelt. Die Bewertungsmaßstäbe können Sie durch Anklicken des Fragezeichen Symbols einsehen.

Ergebnis

> 45 Punkte = Arztbörse Kaufempfehlung = höchste
35-44 Punkte = Arztbörse Kaufempfehlung = hoch
25-34 Punkte = Arztbörse Kaufempfehlung = überdurchschnittlich
0-24 Punkte = Arztbörse Kaufempfehlung = durchschnittlich
Bitte beachten, dass nicht ausgefüllte Felder das Ergebnis beeinflussen.

Medzinische Infrastruktur

Bitte registrieren oder einloggen, um alle Details zu sehen.

Zur Registrierung / Login

Filter

Filter Ärzte
    Klinik
      Filter Heilberater

        Kontaktdaten

        Ansprechpartner

        Herr Dr. med.
        XXX
        XXX
        XXX
        XXX
        030/111 xxx 222

        Expose

        Bitte registrieren oder einloggen, um alle Details zu sehen.

        Zur Registrierung / Login

        Arztbörsen Ratgeber & Broschüren

        Standortanalyse & Geomarketing

        Arztbörsen Services

        Inserieren